Nội dung
Đặc điểm chung cơ bản của nhà gỗ 3 gian đẹp
Nhà gỗ 3 gian đẹp là một kiểu nhà truyền thống của vùng quê đồng bằng Bắc Bộ được làm theo lối kẻ truyền. Kiểu nhà này được chia thành 3 gian , các gian thông với nhau. Gian chính giữa là nơi thờ tự của gia đình. Các gian hai bên là nơi tiếp khách, nghỉ ngơi và trò chuyện,….
Mẫu nhà gỗ 3 gian đẹp theo từng vùng miền mà sẽ có sụ khác nhau trong kiến trúc nhưng nhìn chung thì kiểu nhà này bao gồm những đặc trưng sau:
- Mẫu nhà gỗ 3 gian đẹp thường sử dụng ngói đỏ, mái xây theo hướng hai mái với độ dốc hợp lí. Hệ thống rui mè của ngôi nhà thường được sử dụng là rui mè gỗ để đảm bảo sức chịu đựng và tính thẩm mĩ cũng như phù hợp cả ngôi nhà, cũng như kết cấu mái được bằng, kín và đẹp hơn.
- Bản vẽ nhà ba gian thường được thiết kế theo công năng đối xứng. Ở giữa là gian giữa có diện tích lớn hơn và đối xứng ở hai bên là 2 gian chái có diện tích nhỏ hơn và có công năng tương tự nhau.
- Thiết kế nhà gỗ 3 gian đẹp thường được đi kèm với không gian sân vườn xung quanh. Kiểu thiết kế quen thuộc này sẽ mang lại cho ngôi nhà của bạn một không gian thoáng mát, mát mẻ, không khí luôn được lưu thong và gần gũi với thiên nhiên. Vì thế, nếu bạn là một ngườ yêu thiên nhiên, thích sự tinh tế và giản dị thì những ngôi nhà 3 gian chính là sự lựa chọn hàng đầu cho bạn.

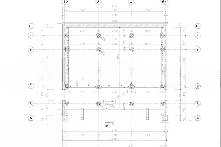
Thông số kỹ thuật của nhà gỗ 3 gian đẹp
- Nhà gỗ 3 gian đẹp có chiều dài 9,57m; chiều rộng nhà 7,59m (bao gồm hiên kích thước phủ bì). Gian chính giữa có khoảng gian trung bình 2,95m; hai gian bên có khoảng gian trung bình 2,90m
- Căn nhà gồm có 22 cột, thứ tự đường kích các cột là: cột cái có đường kính 31cm, cột con có đường kính 27cm, cột hiên và cột hậu có đường kính 25cm.
- Ngôi nhà sử dụng các dòng gỗ tốt nhất thị trường hiện nay như: gỗ đỏ, gỗ mít,gỗ lim,…

Các dạng nhà gỗ 3 gian đẹp phổ biến nhất hiện nay
Nhà gỗ 3 gian đẹp truyền thống
Thiết kế nhà gỗ 3 gian đẹp truyền thống vô cùng đơn giản từ kiến trúc nội – ngoại thất. Sự mộc mạc được bao trùm lên toàn bộ không gian ngôi nhà. Với mái ngói đỏ tươi, với những cột trụ bằng gỗ, tường được xây bằng vôi cát bình thường.
Cách bố trí 3 gian với các mục đích công năng rõ ràng, gian chính giữa làm nơi thờ cúng và đặt bàn ghế tiếp khách, 2 gian còn lại là nơi kê giường, sập phản.
Trước những bậc thềm nhà chính là một khoảng sân rộng lớn, phía xa xa là những hàng cau, rặng cây xanh mát.
Nhà gỗ 3 gian đẹp 2 chái truyền thống
Nhà gỗ 3 gian đẹp 2 chái là kiểu nhà gồm có 3 khu vực, gian giữa thường là nơi thờ cùng và bày bàn ghế tiếp khách, 2 gian bên để kê giường của bố mẹ, con cái hoặc để đón khách ở lại. 2 chái nhỏ ở đầu nhà có thể để đồ đạc, thóc lúa… Cách bố trí đơn giản nhưng rất khoa học, gọn gàng.

Nhà gỗ 3 gian đẹp hiện đại
Nhà gỗ 3 gian đẹp có thể hiển một cách đơn giản là kiểu nhà 1 tầng được chia thành 3 gian phòng. Mẫu nhà 3 gian hiện đại bao gồm gian chính đặt ở giữa (phòng có diện tích lớn), 2 bên là gian phụ ( 2 chái, phòng có diện tích nhỏ)
Ngoài thất có thay đổi để đáp ứng thị hiếu thẩm mỹ của thời đại so với nhà 3 gian truyền thống
- Hình khối ngôi nhà kiên cố, vững chắc, chủ yếu các khối hình vuông.
- Thiết kế nhà 3 gian hiện đại sở hữu không gian sân vườn rộng rãi, gần gũi thiên nhiên.
- Bố cục nhà 3 gian kiểu đối xứng, 1 gian giữa và 2 gian bên cạnh cân đối.
- Một số công trình nhà 3 gian kết hợp giữa nét đẹp hiện đại hòa cùng nét truyền thống thể hiện qua các vật liệu xây dựng và cấu trúc của ngôi nhà như mái lệch, mái bằng, đá hay kính,…
Nội thất của nhà gỗ 3 gian đẹp và hiện đại
- Thiết kế tối giản những món đồ nội thất, thay vào đó là thiết kế đa năng.
- Màu sắc chủ đạo tươi sáng, những món đồ trang trí mới mẻ để tô điểm vẻ đẹp hiện đại.
- Ưu tiên không gian mở, sử dụng những đồ nội thất cần thiết.
- Không cầu kỳ, rườm rà, thiết kế nhà 3 gian hiện đại với nội thất tối giản nhưng vẫn đảm bảo thẩm mỹ cao.
Một số kiến trúc nhà gỗ 3 gian đẹp


Mức giá nhà gỗ 3 gian đẹp có đắt không?
Lựa chọn loại gỗ thi công: Gia chủ nên lựa chọn các loại gỗ tự nhiên có độ bền cao như gỗ mít, gỗ xoan, gỗ lim. Ngoài ra, gia chủ có thể sử dụng kết hợp nhiều loại gỗ với nhau cho từng bộ phận căn nhà để đảm bảo giữ đúng truyền thống, hợp phong thủy mà chi phí hợp lý.
Lựa chọn đội ngũ thi công lành nghề: Thi công nhà gỗ 5 gian đòi hỏi những quy định khắt khe về kết cấu nhà, hình thức hoa văn, họa tiết trang trí,… và chỉ có những người thợ lâu năm, có hiểu biết kỹ lưỡng về lịch sử truyền thống dân tộc mới có thể tái hiện lên được cái hồn cốt của căn nhà cổ truyền Bạn có thể tin tưởng và trải nghiệm dịch vụ công trình bên Nhà gỗ Tài Lộc chắc chắn sẽ không khiến gia chủ thất vọng
Phong thủy: Khi làm nhà gỗ 5 gian, gia chủ cần mời chuyên gia hoặc người am hiểu, có kinh nghiệm nghiên cứu thật kỹ thế đất, hướng nhà, vị trí xây nhà, ngày giờ đẹp thi công,… đảm bảo ngôi nhà hợp mệnh với gia chủ, mang tới sinh khí cho cả gia đình.
Thiết kế khuôn viên: Công trình nhà gỗ 5 gian không thể thiếu sự góp mặt của khu vườn bao quanh và khuôn viên phía trước nhà. Trước khi thi công, gia chủ cần tìm hiểu chi tiết hướng khuôn viên và các loại cây phù hợp đảm bảo hợp thẩm mỹ, cây cối phát triển xanh tốt mang lại vận may, tài lộc.
Yếu tố giá thành để xây dựng nhà gỗ 3 gian đẹp
Chi phí làm nhà gỗ 3 gian bằng cách áp dụng công thức sau:
Giá nhà gỗ = CP thiết kế + CP nguyên vật liệu + CP lắp điện nước + CP nội, ngoại thất + CP nhân công
Hiện nay, ít nhất để có được một căn nhà gỗ 3 gian đẹp, bạn phải bỏ ra khoảng 500 triệu đòng. Hầu hết những ngôi nhà gỗ 3 gian hiện nay thường có giá dao động khoảng từ 800 triệu – 1,3 tỷ đồng. Khi đến với Nhà Gỗ Tài Lộc, quý khách hàng chỉ cần chia sẻ với chúng tôi về thiết kế mong muốn, mức kinh phí của mình, đội ngũ kiến trúc sư chuyên nghiệp sẽ căn cứ vào đó để đưa ra những giải pháp phù hợp nhất.

Giới thiệu đơn vị uy tín chuyên thi công nhà gỗ cổ truyền
- Nhà gỗ Tài Lộc thừa hưởng tinh hoa nghề làm nhà gỗ cổ truyền. Của làng nghề truyền thống xã Chàng Sơn, huyện Thạch Thất, thành phố Hà Nội.
- Đến nay nhà gỗ Tài Lộc đã thi công rất nhiều công trình. Như nhà gỗ 3 gian, 5 gian, nhà thờ họ, từ đường. Và các công trình nhà gỗ theo lối cổ truyền Bắc Bộ trên nhiều tỉnh thành cả nước. Mời quý vị và các bạn đi thăm quan nhà mẫu để biết nhiều hơn về sản phẩm chúng tôi
- Nhà gỗ Tài Lộc với đội ngũ tư vấn nhiệt tình sẵn sàng mời bạn thăm quan xưởng. Và tìm hiểu nghề làm nhà gỗ cổ truyền Việt Nam.
- Nhằm giữ gìn kiến trúc văn hóa cổ truyền và tiếp nối sự nghiệp gia đình. Thạc sĩ, kiến trúc sư Đỗ Khắc Long đã thành lập Nhà gỗ Tài Lộc. Với mục tiêu kế thừa, phát huy tạo ra những sản phẩm nhà gỗ cổ truyền dân gian.
- Xưởng nhà gỗ Tài Lộc nằm cách xa trung tâm Hà Nội về phía tây 25km. Nằm ở Lô 3 Đường Đại Lợi- KCN xã Canh Nậu- Thạch Thất, Hà Nội. Nơi đây nổi tiếng với làng nghề mộc lâu đời.
- Tài Lộc với quy mô 6 xưởng sản xuất có diện tích 3000m2 và hơn 100 công nhân, được làm theo tổ đội chuyên trách khác nhau, hướng đến sự chuyên nghiệp và chuyên môn sâu.
- Nhà Gỗ Tài Lộc luôn chú trọng chất lượng gỗ hàng đầu. Để đảm công trình nhà gỗ có tuổi thọ cao.
- Quy trình lọc gỗ và xẻ gỗ của nhà gỗ Tài Lộc hết sức khắt khe. Tất cả đều được giám sát chặt chẽ đảm bảo chất lượng của các sản phẩm nhà gỗ.
Vừa rồi chúng ta đã cùng nhau tìm hiểu về quá trình lắp dựng nhà gỗ 3 gian đẹp . Đây là một giai đoạn đánh dấu những cột mốc hoàn thiện chuẩn bị hoàn thiện nhà gỗ. Nếu quý vị và các bạn cũng đang mong muốn thực hiện một căn nhà gỗ cổ truyền cho riêng mình. Vui lòng liên hệ với chúng tôi để được tư vấn kỹ hơn và đặt hàng thực hiện công trình.
Thông tin về nhà gỗ Tài Lộc
Hotline/Zalo: 0971 485 666 hoặc 0974 573 888
Website: https://nhagotailoc.com/
Nhận tư vấn thiết kế: Th.s kiến trúc sư Đỗ Khắc Long
Xưởng sản xuất: Lô 3 Đường Đại Lợi- KCN xã Canh Nậu- Thạchi Thất, Hà Nội
>Tham khảo: những video hay về nhà gỗ cổ Bắc Bộ
Tham khảo: những dự án nhà gỗ cổ truyền đẹp
